Eladó Családi ház Dunaharaszti - Deák Ferenc utca

79 m2Alapterület 3 Szoba
99 900 000 Ft Ár
393729Azonosító
További adatok

487 m2 Telek

Udvari Kilátás

Jó állapotú Állapot

Tégla Szerkezet

10 m2 Erkély/terasz

Gáz (cirkó) Fűtés

Összkomfort Komfort

Saját garázs Parkolás

Tömegközlekedés

Nem Amerikai konyhás

Van Kertkapcsolat

1971 Építés éve

Délkeleti Tájolás

Hitelkalkuláció – a részletekért kattintson valamelyik bank logójára!

Eladó 3 szobás önálló családi ház Dunaharasztiban.

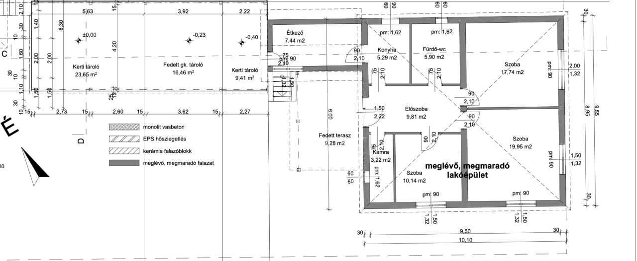
Dunaharaszti Óvárosában kínálunk megvételre egy nettó 79 nm alapterületű, téglából épült, önálló családi házat, 10 nm-es fedett terasszal 487 nm-es telken.

A telken található még, egy 16,5 nm-es fedett gépkocsi beálló +33 nm-es fedett kerti tároló.
2025-ben lettek beépítve új nyílászárok, szúnyoghálóval illetve redőnnyel szerelve.
A tető 15 éve lett felújítva. A fűtést gáz církó biztosítja radiátoros hőleadással + 2 db hűtő-fűtő klíma lett felszerelve.
A kert locsolását fúrt kút biztosítja.

Ingatlan beosztása:
- előszoba 9,81nm
- kamra 3,22nm
- konyha 5,29nm
- étkező 7,44nm
- fürdőszoba 5,9nm
- szoba 10,14nm
- szoba 17,74nm
- szoba 19,95nm
-----------------------------
nettó: 79,49nm

Hév,buszmegálló a közelben. Iskola ,óvoda,bölcsöde,orvosi rendelő séta távolságra található.

Amivel segítjük az Ön ingatlanvásárlását:
- ingyenes hitelügyintézés,
- jogi háttér,
- földhivatali ügyintézés,
- energetikai tanúsítvány,
- a vevő számára az ingatlanközvetítés ingyenes.

Irodánk 30 éves szakmai tapasztalattal áll ügyfelei rendelkezésére!

Várom szíves megkeresését!
Bellovics Tamás

Bellovics Tamás

Hívjon bizalommal

+36-20-611-Mutasd!

További hirdetéseim

Ingatlaniroda
GDN Ingatlanhálózat - PATENT HOME Ingatlaniroda
+36-20-611-3405

Küldjön üzenetet

Visszahívást kérek

Hasonló ingatlanok