Eladó Lakás (téglaépítésű) Budapest IX. kerület - Sobieski János utca

33 m2Alapterület 1 Szoba
64 300 000 Ft Ár
394512Azonosító
További adatok

Utcai Kilátás

Felújított Állapot

Tégla Szerkezet

Elektromos Fűtés

Összkomfort Komfort

Utcán, közterületen Parkolás

Emelet 1

Nincs Lift

Kiváló Tömegközlekedés

Nem Amerikai konyhás

Nincs Kertkapcsolat

1970 Építés éve

Közös költség 16 000 Ft

Hitelkalkuláció – a részletekért kattintson valamelyik bank logójára!

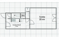
Eladásra kínálunk egy felújított téglaépítésű lakást Budapest szívében, a Sobieski János utcában.
A belvárosi 1. emeleti ingatlan 33 négyzetméter alapterületű, amely ideális választás egyedülállók vagy fiatal párok számára.
A lakás egy kényelmes nagyságú szobával, amelyből az utcai kilátás nyílik, biztosítja a mindennapi kényelmet.
Az elektromos fűtésű lakást teljeskörűen felújították, hogy modern igényeket könnyedén kiszolgáljon.
A meleg és barátságos otthon tökéletes választás lehet azok számára, akik szeretik a belváros nyüzsgését és közelségét.
Ne hagyja ki ezt a remek lehetőséget, lépjen kapcsolatba velünk a részletekért!
Bellovics Tamás

Bellovics Tamás

Hívjon bizalommal

+36-20-611-Mutasd!

További hirdetéseim

Ingatlaniroda
GDN Ingatlanhálózat - PATENT HOME Ingatlaniroda
+36-20-611-3405

Küldjön üzenetet

Visszahívást kérek

Hasonló ingatlanok