Eladó Telek Balatonkenese - Vak Bottyán utca

1 070 m2Alapterület 0 Szoba
69 000 000 Ft Ár
394722Azonosító
További adatok

Kertre néző Kilátás

Kiváló Tömegközlekedés

Balatonkenesén 400 m-re a Balaton parthoz és közel a strandhoz, eladásra kínálunk egy hétvégi házas övezetbe tartozó 1070 m2-es építési telket, a GDN Ingatlanhálózat kínálatából!

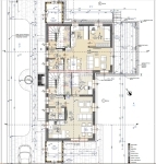
- A telekre max. 142 m2-es épület létesíthető. A rendeltetés lehet hétvégi ház és lakóház is. A létesíthető épületben legfeljebb két külön egységet lehet kialakítani.
- Ilyen kétegységes épületet mutatnak be a mellékelt látványképek és alaprajzok.
- A terv az építésügyi hatósági ügyintézésen már átesett, amit az eladó térítésmentesen bocsájt az új tulajdonos rendelkezésére.

- A víz, a csatorna, a villany közműcsatlakozások kiépítettek, a terület jelenleg fűvel borított beépítetlen telek, amelytől Kenese egyik strandja, valamint élelmiszer-vegyes bolt gyalogosan 7-8 percre található.

Ne hagyja ki ezt a remek lehetőséget!

Amennyiben a veszprémi GDN Ingatlaniroda által kínált ingatlan vagy bármely, a kínálatunkban található felkeltette érdeklődését, forduljon hozzám bizalommal!

Ingatlanirodánk díjmentes, banksemleges hitelügyintézéssel, illetve ügyvédi tanácsadással is áll Ügyfeleink rendelkezésére!
Miklósné Csapó Andrea

Miklósné Csapó Andrea

Hívjon bizalommal

+36-20-397-Mutasd!

További hirdetéseim

Ingatlaniroda
GDN Ingatlanhálózat - PATENT HOME Ingatlaniroda
+36-20-611-3405

Küldjön üzenetet

Visszahívást kérek

Hasonló ingatlanok